メイン メイン

飲食店開業・経営再生・売上、立て直しは当社にご相談ください

いまや飲食店の店舗数は全国の約60万店から70万店あると言われているものの、毎年5万店の新規出店希望者が後を経たないという現実があるのです」しかし皮肉にも飲食店の成功を夢見て開店しても、現実は「お客様が来ない!」「売上が上がらない」など、経営の見通しが立たず、わずか半年もたたずして弊店を余儀なくせれる店も約5万店あるという現実があります。

「何故に飲食店開業を失敗してしまうのでしょうか?」その答えは飲食店の基礎知識を学ばず、また十分な企画計画の準備なしに開店してしまうという安易さにあることです。

この飲食開業を失敗しないための開業者や新規設立企業様の飲食開業成功の要を学び、成功の一躍を担えることを願って設立したのが「ティファーズコンサルティング合同会社」です。

飲食店繁盛店作りブログ&ニュース 飲食店繁盛店作りブログ&ニュース

  • 2026年2月2日

    低価格ステーキ飲食店の繁盛作りの鍵とは

    価格ステーキ店の成功は、 👉 「安く売る」ではなく「ムダを徹底的に削った構造」で決まる この一点に尽きます。 ① 商品戦略|「肉の満足感」を一点突破で作る 低価格業態で“選ばれる理由”は、シンプルで強いこ […]

  • 2026年1月30日

    繁盛店作りの鍵・コストは「下げる=削る」ではなく、「構造を変えて最適化する」王道

    現場を疲弊させずに、持続的にFLを下げる実践手法を体系的に整理しましょう 以下具体的なFLコストを下げる方法を解説いたします。 ① FLコストの基本整理(前提) • F(Food)=原価 • L(Labor)=人件費 • […]

  • 2026年1月22日

    【繁盛店を創造する鍵|新業態企画】 AI × Smart Kitchen Restaurant

    これからの飲食店に必要なのは、 「効率」と「人の温度」を同時に成立させること。 FOOD TECH LOUNGEは、 AIとスマートキッチンでオペレーションを極限まで効率化しながら、 接客には“あえて人が関わる”次世代型 […]

  • 2026年1月13日

    026年 繁盛店作りの鍵・時代が求める飲食業態を創造する

    【飲食市場分析】 外食市場は、近年大きな転換点にあります。 コロナ禍を経て「安く・早く・空腹を満たす」だけの外食は役割を終え、わざわざ行く理由のある店が選ばれる時代になりました。 特に20〜40代の女性、ファミリー、カッ […]

  • 2026年1月7日

    繁盛店作りの鍵・今「アフタヌーンティ」がはやる理由とは

    ― 市場分析から読み解く「体験型外食」の現在地と未来 ― 1.市場分析|なぜ今、アフタヌーンティーなのか 近年の外食市場は、「日常利用の外食」から「目的を持った外食」へと大きくシフトしている。 コロナ禍以降、外食頻度は減 […]

  • 2026年1月5日

    2026年 繁盛店作りの鍵・新業態企画提案

    【市場分析】 外食市場は今、大きな転換点にあります。 コロナ禍を経て「安く・早く・空腹を満たす」だけの外食は役割を終え、わざわざ行く理由のある店が選ばれる時代になりました。 特に20〜40代の女性、ファミリー、カップル、 […]

MORE

厨房設計ブログ

  • 2026年1月26日

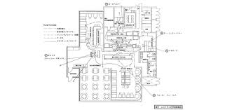
    厨房設計・「自店の厨房計画が本当に効率的かどうか」 を判断するための実践的チェックポイント

    ① 動線設計は「交差していないか」 最重要ポイント:人・モノ・料理の動線が重ならないこと ☑ 調理スタッフ同士がすれ違う頻度が高くないか ☑ 配膳動線と下げ膳動線が交差していないか &#x26 […]

  • 2025年12月9日

    厨房設計・洗浄ライン計画の効率的な作り方

    飲食店をはじめ、食に関わる施設には必ず「洗浄の機能」が求められます。 特に飲食店では、衛生面と労働効率の双方から、洗浄機を備えた洗浄エリアを厨房内に設けることが一般化しています。 かつてはシンクでの手洗いが主流でしたが、 […]

  • 2025年12月3日

    厨房設計・飲食店の成功を左右する最大の要素―

    それは「厨房」と「客席」の連携にあります。 実はこの2つのエリアだけで、店舗運営全体の約80%が決まるとも言われています。 どれほど立派なインテリアや素敵なサービスがあっても、 厨房が非効率で動きにくければ、料理の提供が […]

  • 2025年11月6日

    厨房設計/繁忙時に料理が遅れる本当の理由とは?

    飲食店の売上を左右する最大の要因――それは「繁忙時のオペレーション効率」です。 ランチタイムやディナータイムなど、来客が集中する時間帯に、いかにスムーズに料理を提供し、客席を回転させられるか。この時間帯の動きこそが、その […]

  • 2025年10月20日

    厨房設計・厨房見積もり金額は適正化?

    近年、厨房機器の見積もりをそのままの価格で承認するクライアントはほとんどいなくなっています。 この現象の背景には、業界内での低価格競争が大きな影響を及ぼしています。以下では、この状況を深掘りし、厨房機器見積もりにおける不 […]

  • 2025年10月15日

    厨房設計・飲食店開業者が陥りやすい「厨房設計任せの落とし穴」

    多くの飲食店開業者は、厨房設計の知識がないまま厨房会社に一任してしまう傾向があります。 「プロに任せれば間違いない」と安心してしまいがちですが、実際には開業後に“想定外の非効率”に悩まされるケースが後を絶ちません。 たと […]

  • 2025年10月7日

    厨房設計 「厨房は“裏方”ではなく“舞台”である」

    ~五感を刺激する「食のライブ演出」が繁盛を生む~ 近年、数多くの飲食店が「オープンキッチン」や「ライブキッチン」を採用しています。 かつて厨房は“見せない裏方”の象徴でした。しかし今では、料理を「作る過程」こそが最高のエ […]

  • 2025年10月1日

    厨房設計・洗浄ライン効率的計画のポイント

    1. 洗浄エリアの役割と重要性 飲食店をはじめ、食に関わる施設には必ず「食器類や厨房什器を洗浄する機能」が必要です。 以前はシンクでの手洗いも一般的でしたが、現在では 衛生面の確保 と 作業効率の向上 のために、食器洗浄 […]

  • 2025年9月17日

    厨房設計・清掃性を維持した厨房設置仕様のポイント

    理想的な厨房環境づくりに一歩踏み出す勇気を持て ________________________________________ 1. 日本の厨房設計が抱える現状と課題 飲食店の厨房は「お客様の健康と安全を守る最後の砦」 […]

  • 2025年9月11日

    厨房設計・よりよい厨房計画の是非を決めるポイント

    飲食店を企画する際、必ず直面するのが「厨房計画の承認」です。最終的にその是非を決定する立場にあるのはクライアント、つまりオーナーや経営者自身です。しかし、厨房設計や図面に馴染みのない方にとって「何が良くて、何がダメなのか […]

  • 2025年8月18日

    厨房設計・固定概念からの脱却(独自の姿勢を持て)

    1. 業界の「古臭い体質」の現状と問題点 厨房業界は、長年にわたって伝統的なやり方に依存してきました。業界全体で見ても、新しい技術や考え方が浸透するスピードが遅く、その結果、進化が停滞しています。 1.1 伝統と家業の影 […]

  • 2025年8月6日

    厨房設計 「厨房設計と厨房計画:主軸メニューに合わせた機器配置の重要性」

    飲食店の厨房設計において最も重要なのは、業態に合わせた主軸メニューを基にした機器配置計画です。業態に適した厨房機器の配置や構成は、メニューや調理法に応じて大きく変わるため、メニュー内容に基づく厨房設計が求められます。 厨 […]

MORE

人材教育ブログ

  • 2026年2月6日

    人材教育・優秀な店長のスタッフとアルバイトの使い方とは

    人を「回す」のではなく「活かす」店長の視点 飲食店のオペレーションでスタッフを活用することで配慮しなければならないことは、人は回すのではなく、どのように活かすかという視点で活用する事を理解しておくことです。 ① なぜ「使 […]

  • 2026年2月5日

    人材教育・利益を残すための飲食店 数値基礎とは?

    「売上は上がっているのに、なぜか利益が残らない」 多くの飲食店で起こるこの悩みの正体は、 努力不足ではなく数値の見方が整理されていないことにあります。 飲食店経営で本当に押さえるべき数値は、実はとてもシンプル。 &#x2 […]

  • 2026年1月19日

    【繁盛店の店長が受けている教育と、身につけている知識とは】

    飲食店の店長」と一言で言っても、 業種・業態・個人店・企業店によって 知識レベルも、視座も、モチベーションも大きく異なります。 なぜ差が生まれるのか。 それは 店長教育の“仕組み”が存在しない現場が圧倒的に多い からです […]

  • 2026年1月9日

    店長の部下と有効なコミュニケーションのとり方とは

    飲食店の店長にとって、 部下とのコミュニケーションは 売上やサービス品質を支える 最重要スキルの一つです。 現場は常に忙しく、 スタッフの年齢も価値観も働く目的もさまざま。 そんな中で店長は、 単に指示を出す管理者ではな […]

  • 2025年12月25日

    人材教育・店長の部下と有効なコミュニケーションの取り方とは

    飲食店の店長に求められる最も重要な力の一つが、部下との有効なコミュニケーションです。 現場は常に忙しく、スタッフの年齢も価値観も働く理由もさまざまです。その中で店長は、単に指示を出すだけの存在ではありません。スタッフ一人 […]

  • 2025年12月15日

    材教育・繁盛店の店長が実践する「顧客集客法」

    繁盛店の店長は、集客を「イベント」ではなく「日常の習慣」として運営しています。 集客とは、広告費をかけることではなく、“来店理由をつくり続ける仕組み” を積み上げる行為です。 そのために、店長は日々の接客・商品・スタッフ […]

  • 2025年12月11日

    人材教育・飲食店の店長に求められる「人が辞めない教育法」

    飲食店の現場でスタッフが辞めていく理由の多くは、仕事内容そのものよりも「不安」と「人間関係」によるものです。働き始めたばかりの新人は、何もわからない不安の中で毎日を過ごし、少しのミスや注意によって心が折れてしまうことが少 […]

  • 2025年12月7日

    人材教育・飲食店店長のアルバイト“戦力化”方法

    飲食店の店長として店舗を安定的に運営していくためには、アルバイトスタッフをいかに早く、そして正しく“戦力化”できるかが最も重要な鍵になります。 どれほど優れた商品や優雅なサービス理念があっても、現場を動かすのは「人」であ […]

  • 2025年11月20日

    人材教育・飲食店の店長にとって「数値管理」とは

    飲食店の店長にとって「数値管理」は、店舗を任されている立場として避けて通れない重要な仕事です。 店長は現場の責任者であると同時に、経営者の代わりでもあります。だからこそ、ホールの応対ができる、厨房の作業ができる、というだ […]

  • 2025年11月17日

    人材教育・店長とアルバイトスタッフとのコミュニケーションの方法

    飲食店の現場で店長がスタッフ、特にアルバイトに声をかける時、ただ注意するだけでは人は動きません。大切なのは「相手の心が開いた状態で話す」ことであり、そのためには、伝え方の“順番”と“温度”が決定的になります。飲食店は接客 […]

  • 2025年11月11日

    人材教育 店長としての能力をたかめる教育方法  

    店長としての能力を高めるための教育方法は、単なるマニュアル教育ではなく、**「経営視点」「人材育成力」「実行力」**の3つを柱に構築することが重要です。以下に体系的な教育方法をまとめます。 _______________ […]

  • 2025年11月4日

    人材教育:飲食店におけるスーパーバイザー(SV)の役割とは?

    SVとは、毎週の店舗ラウンドで各店に入り、POSの時間帯別売上・商品別販売数を店長と一緒に確認し、原因→対策→行動まで落とし込む人。 たとえば、17時〜19時の来店が伸びていない場合は、客層・立地・競合比較を見ながら、「 […]

MORE

PROFILE/ POLICY

  • 竹谷 稔 宏
  • Toshihiro Takeya
  • Executive Director

フードビジネスコンサルタント/1954年栃木県に生まれる。 東洋大学卒業後、大手レストランチェーン本部のスタッフとして運営、企画開発、キッチンシステム開発に従事。 1988年ツカモト&アソーシエイツ株 フードビジネスの業種・業態のキッチンデザイン、経営コンサルティングに従事

  • 1991年エーエフディーコンサルタンツ株式会社設立
  • 2019年エーエフディーコンサルタンツ代表 辞任 
  • 2019年11月 ティファーズコンサルティング合同会社
  • 取締役エグゼクティブ・ディレクター就任
noimage

company

ティファーズコンサルティング合同会社

TFRSCONSULTING CC

Mail:info@tfrs-consul.tokyo

設立:2018年10月11日

住所:〒107-0061東京都港区北青山1丁目3番1号アールキューブ青山3階

代表役員 竹谷 稔宏

取引銀行 みずほ銀行

「TFRS CONSULTING」は、質の高いコンサルティング業務の提供を通じて、正しいフードサービス発展のために、情報を駆使するとともに、オペレーション動線、メニユー分析や効率的な厨房計画など科学的な理論や手法に基づいてフードビジネスの成功率を高めることを目的とした飲食開業、企業再生を支援するコンサルティング会社です。