HOME
BUSINESS
BLOG&VIDEO SEMINEAR
ONE POINT CONSULTING
Food Business Restructuring Support
RESTAURANTS DEVELOPMENT CONSULTING
MENU PLANNING
KITCHEN DESIGN CONSULTING
FOODBUSINESS FEASIBILITY CONSULTING
coaching
EDUCATION
SEMINAR
PROJECT REFRENCE
Books&Publication
CONTACT
HOME
>
厨房設計ブログ
>
厨房設計・よりよい厨房計画の是非を決めるポイント
>
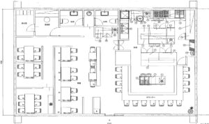
厨房図面
厨房図面
お問合わせこちら
Copyright © 2026 HOME All rights Reserved.